L'environnement
PROTECTION DE L’ENVIRONNEMENT
mise à jour du 17 juillet 2003
1. Les textes officiels
Ministère de l’Ecologie et du Développement Durable : L’agrément des associations de protection de l’environnement
2. Les liens
Site de l’Autorité de Contrôle des Nuisances Sonores Aéroportuaires (ACNUSA)
Quelques cas particuliers à Pessac
Le moulin de Noès
Voir l’annexe au rapport moral 2003 de la Fédération des Syndicats de Quartiers de Pessac.
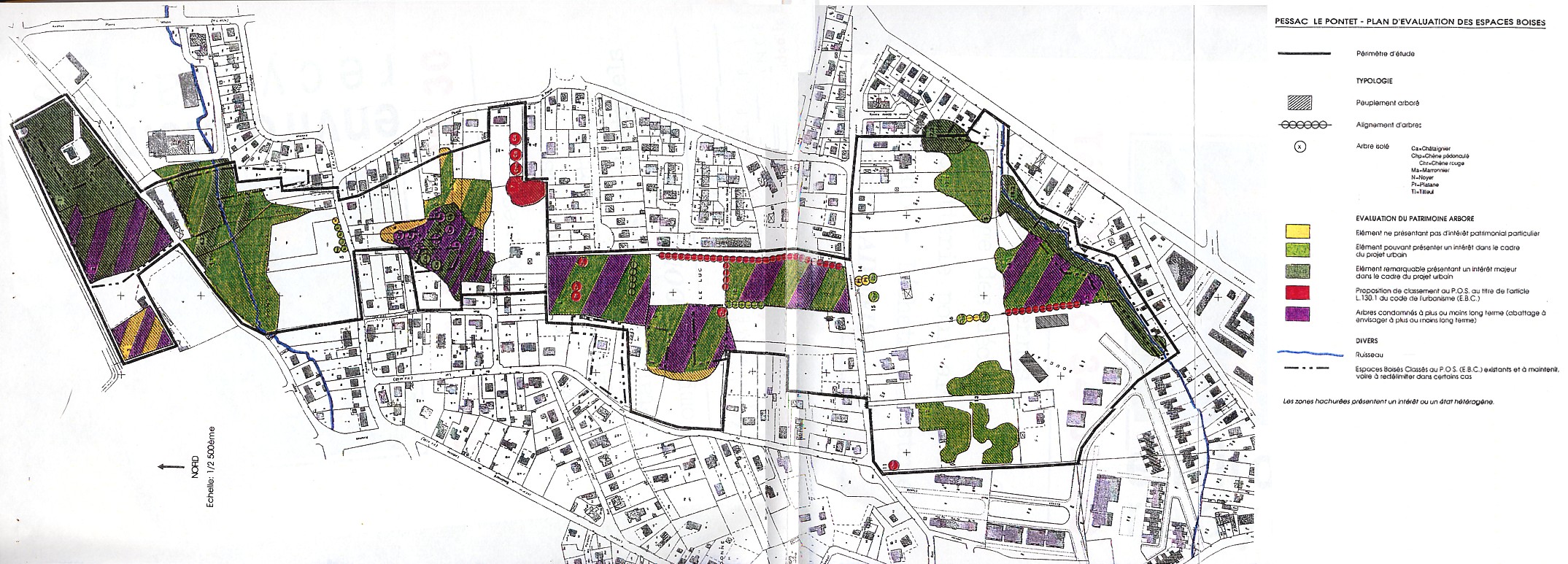
Le secteur du Pontet
La ville de Pessac a fait procéder à un diagnostic des espaces boisés sur le secteur du Pontet afin de déterminer l’intérêt patrimonial des espaces boisés et des arbres isolés ou alignés. Cette étude a été réalisée par le Conseil d’Architecture, d’Urbanisme et d’Environnement de la Gironde qui a déposé les conclusions suivantes :
1 – Un diagnostic contrasté
Le patrimoine arboré présente souvent un grand intérêt paysager, mais les problèmes sanitaires (souvent dus à des chocs lors de l’entretien) sont importants et condamnent de nombreux arbres à moyen terme.
2 -Arrêter en urgence le mode d’entretien mis en oeuvre par la C.U.B.
Le fauchage, réalisé vraisemblablement avec des engins lourds et sans précaution pour les arbres, a des conséquences très néfastes sur ceux-ci : le nombre d’arbres abîmés au collet par des chocs et donc condamnés à terme est très important dans les zones concernées.
3 – Des interventions phytosanitaires s’avèrent urgentes
– Abattage et destruction des châtaigniers atteints par Endothia parasitica. Traitement des châtaigniers peu atteints (cette action est urgente et indispensable).
– Abattage des arbres morts et dangereux.
– Nettoyage et enlèvement des branches mortes.
– Eclaircissage des parcelles trop denses.
Il est indispensable avant d’engager ces actions phytosanitaires de procéder à une information des riverains afin d’expliquer la finalité de ces interventions et leur caractère obligatoire pour le devenir des arbres sains.
4 -Affiner le projet de tramway au regard des données paysagères
Si des micro-adaptations du tracé seraient souhaitables, c’est surtout le type de traitement des abords des voies qui doit être défini en intégrant avec beaucoup de précision les éléments du paysage existant.
5 -Repenser le projet urbain
Au regard du tracé de tramway et des données paysagères, le projet urbain établi en 1995 doit être repensé en profondeur.
Les éléments de paysage sont réellement susceptibles de jouer un rôle essentiel dans le futur projet urbain. Il ne s’agit pas d’aborder ces éléments comme des contraintes mais plutôt comme des atouts qui peuvent apporter de la qualité au projet urbain.
6 -Réviser les espaces boisés classés
Les Espaces Boisés Classés au P.O.S pourront être redéfinis au regard de la présente expertise (voir plan d’évaluation).
RAPPORT SPÉCIAL
présenté par le président Dominique Lestynek
Assemblée générale du 22 février 2003
Le Moulin de Noës est le dernier vestige de la « Ferme expérimentale », ensemble monumental du XVIIIème siècle détruit dans les années 1970.
Cet ancien moulin à eau, situé sur le ruisseau « Le Peugue », qui possède une façade caractéristique et remarquable, a été classé « monument historique » le 12 décembre 1984.
La servitude d’utilité publique d’abords grève donc les immeubles balayés par le rayon de protection de 500 mètres et situés dans le champ de visibilité de cet édifice.
Il existait face au moulin un vaste ensemble boisé de plus de 30 000 m² d’un seul tenant d’une part bordant la continuité du cheminement piéton le long du ruisseau et d’autre part longeant l’avenue de Noës, qui a été loti par la société Négocim (M. Xans) .
De ce lotissement éponyme situé dans le périmètre de protection et en co-visibilité du Moulin de Noës, est détachée une parcelle au titre de tampon végétal, non constructible et dont le boisement doit être renforcé sur prescriptions de l’Architecte des Bâtiments de France ainsi résumées :
« respecter les zones de retrait pour construire le long de l’avenue de Noës, du ruisseau et de la parcelle d’angle n° 17 annotée « tampon végétal conservé en l’état », non construit »
Un permis de construire est accordé à Monsieur Xans par le maire sur la base d’un avis favorable de l’Architecte des Bâtiments de France pour un projet identique au précédent refusé !. Le syndicat de lotissement a déposé un recours auprès du tribunal administratif contre cette décision (non examiné à ce jour).
Un permis de construire est accordé à Monsieur et Madame Gaulin (née Xans) par le maire sur la base d’un avis favorable de l’Architecte des Bâtiments de France pour un projet encore moins protecteur que le précédent (plus proche du ruisseau).
Ainsi une parcelle réputée inconstructible par prescription de l’administration chargée des abords (et engagement du lotisseur) devient non seulement constructible mais encore moins protégée dans ses retraits que les parcelles du lotissement d’origine suite aux avis erratiques de cette même administration !
Notre association agréée protection de l’environnement va effectuer un recours à l’encontre de cette dernière décision :
Recours gracieux dans un premier temps auprès du Maire pour le retrait de sa décision, celui-ci ayant manifesté son désaccord à la construction, sa décision étant contrainte par l’avis de l’Architecte des Bâtiments de France
Recours contentieux dans le second auprès du tribunal administratif pour l’annulation de ce permis en l’absence de réponse du Maire dans des délais raisonnables.
En effet on peut estimer que :
L’administration chargée des abords est liée par ses propres avis.
Le Maire n’est pas lié par un avis illégal.
Le dossier de l'eau
Pour une eau sans plomb
Dossier réalisé à partir des informations et des photos fournies par la Lyonnaise des Eaux
Actuellement, la Communauté Urbaine de Bordeaux procède au remplacement des branchements en plomb du réseau d’eau public dans toute l’agglomération bordelaise, pour répondre à la directive européenne du 3 novembre 1998 qui fixe la teneur en plomb de l’eau à 10 microgrammes par litre au 25 décembre 2013
Quand et où les travaux auront-ils lieu ?
Un programme de remplacement a été engagé. Il sera étalé sur plusieurs années. Afin de réduire les nuisances (sonores, de stationnement, de circulation, …) liées aux chantiers, les entreprises engagées par la Lyonnaise des Eaux travaillent quartier par quartier. Une liste des rues est retenue pour la campagne des remplacement des branchements en plomb en concertation avec la commune.
Le plan fourni par la Lyonnaise des Eaux montre que Pessac est divisé en trois secteurs. En gros, on peut en dégager les créneaux suivants en fonction des quartiers :
– 2010-2011 : Cap de Bos, 3M-Bourgailh, France-Alouette, Le Monteil, Magonty (partiellement, CCLAPS (partiellement), Saige (partiellement)
– 2010-20013 : Toctoucau et Magonty (partiellement)
– 2013 : Pessac-Bourg, Casino, Noës, CCLAPS (partiellement), Saige-Formanoir (partiellement), Chiquet-Fontaudin, Verthamon-Haut-Brion, Les Échoppes, Brivazac-Candau, Sardine, La Paillère-Compostelle.
Remarque. Après 1970, les branchements n’étaient plus réalisés en plomb : les zones construites après cette date ne seront donc pas touchées par cette opération.
Les usagers sont prévenus par courrier de la date et de la durée des travaux les concernant. Des moyens de communication (panneaux, brochures…) informent des travaux en cours. Les usagers sont informés 48 heures auparavant de la coupure d’eau nécessaire pour réaliser les travaux.
Comment se déroule le chantier ?
Les chantiers sont balisés par des panneaux d’information. Les intervenants réalisent dans un premier temps l’ouverture des fouilles pour atteindre et remplacer le branchement. Une fois la couche supérieure de bitume ou de béton percée, un aspirateur très puissant, capable d’aspirer des gros morceaux de bitume, la grave et le sable qui le recouvrent sans abîmer les canalisations de gaz, d’électricité éventuellement présentes, permet d’atteindre le branchement. La canalisation en plomb est remplacée sans ouverture de tranchées grâce à des techniques utilisant l’air comprimé qui propulsent dans le sol la nouvelle canalisation en PVC vers le compteur de l’usager. Après mise en place de la nouvelle canalisation et vérification de la qualité des branchements, le trou est rebouché et le bitume remis en place. Cette opération se fait en principe dans la journée. L’interruption de l’alimentation en eau n’excède pas deux heures.
Un chantier traite en moyenne une vingtaine de branchements par jour. La circulation risque d’être perturbée pendant quelques jours dans la rue où se déroule l’opération.
Quelles sont les conséquences de l’opération ?
Pour la prise de terre
Certaines installations électriques utilisent encore le réseau intérieur en plomb pour le raccordement à la terre. Le nouveau matériau de branchement n’est pas conducteur : il est donc nécessaire de vérifier avec l’électricien que l’ensemble de votre installation est bien raccordé à la terre avec les normes en vigueur.
Pour la santé
À la sortie du branchement, la Lyonnaise des Eaux garantit une eau conforme à la norme. Vérifiez toutefois que votre réseau ne comporte pas d’autres tuyaux en plomb. Renseignez-vous auprès de votre plombier ou du service clientèle de la Lyonnaise des Eaux pour un diagnostic de votre réseau intérieur.
Quelques conseils
– Fermez tous vos robinets avant la coupure d’eau.
– Ouvrez progressivement les robinets lors de la remise en eau, en commençant par ceux qui sont situés à l’étage.
– Vérifiez que le calcaire ne s’est pas accumulé dans votre robinet. Pour cela, il vous suffit de dévisser l’embout du robinet. Si cela n’est pas suffisant, n’hésitez pas à prendre contact avec le service clientèle de la Lyonnaise des Eaux.
RAPPORT à la Commission Consultative des Services Publics Locaux du 7 novembre 2005 CRÉATION DU SERVICE PUBLIC D'ASSAINISSEMENT NON COLLECTIF (S.P.A.N.C.) DE LA COMMUNAUTE URBAINE DE BORDEAUX
1. Le parc des installations d’assainissement non collectif de la Communauté Urbaine de Bordeaux
Au vu des études préalables réalisées par les services communautaires, il existerait sur le territoire communautaire 3000 à 3500 installations d’assainissement non collectif.
Leur répartition sur le territoire communautaire est représentée de façon approximative sur le plan ci-dessous.
Par ailleurs, il a été estimé environ à 120, le nombre de nouvelles installations d’assainissement non collectif créées en moyenne chaque année.
La loi sur l’Eau et son décret d’application du 3 juin 1994 ont doté les collectivités territoriales de nouvelles obligations en matière d’assainissement non collectif des eaux usées.
On entend par installation d’assainissement non collectif (ANC) « tout système d’assainissement des eaux usées domestiques non raccordé au réseau public ».
Les termes d’assainissement non collectif, individuel et autonome sont indépendamment utilisés.
Un dispositif d’assainissement non collectif (ANC) schématisé ci-dessous associe plusieurs filières réglementées qui permettent la collecte, le prétraitement (fosses toutes eaux par exemple), l’épuration (tranchées d’épandage par exemple) ainsi que l’infiltration ou le rejet de 1’effluent traité.
Conformément à la réglementation, les collectivités devront assurer au plus tard d’ici le 31 décembre 2005, le contrôle des installations d’assainissement non collectif neuves, réhabilitées et existantes (compétence obligatoire) et éventuellement leur entretien (compétence facultative).
Ainsi, afin de satisfaire à ces nouvelles obligations, la Communauté Urbaine de Bordeaux, qui est compétente en matière d’assainissement, va créer, d’ici le 31 décembre 2005, son Service Public d’Assainissement Non Collectif.
2. Missions du futur service d’assainissement non collectif
Par délibération du 22 novembre 2002, le Conseil de Communauté a décidé de limiter les missions du futur Service Public d’Assainissement Non Collectif au seul contrôle des installations, et, comme la plupart des collectivités, de ne pas assurer la mission facultative d’entretien des installations d’assainissement non collectif (vidange).
Par conséquent, l’entretien des installations continuera d’être réalisé, comme aujourd’hui, par l’usager, avec les entreprises de vidange de son choix.
La mission de contrôle du SPANC de la C.U.B. se décline ainsi de la manière suivante (Cf. arrêté interministériel du 6 mai 1996 relatif aux modalités de contrôle technique exercé par les communes sur les systèmes d’assainissement non collectif) :
n Vérification technique de conception, d’implantation et d’exécution des installations neuves et réhabilitées d’A.N.C.
n Vérification périodique de bon fonctionnement et d’entretien des installations existantes d’A.N.C.
Il convient par ailleurs de souligner que la mission de service public du SPANC dépassera largement cette seule action de contrôle, en apportant conseil et information aux usagers dans le cas notamment de la mise en place d’une nouvelle installation, ou pour améliorer par exemple le fonctionnement d’installations existantes posant des désagréments aux usagers et riverains. Le service pourra aussi être amené à effectuer des enquêtes de terrain en cas de plaintes ou de pollutions.
La réalisation de ces contrôles permettra donc de faire progresser l’état global du parc des installations ANC, en vue d’une amélioration générale des conditions sanitaires et d’une meilleure protection de l’environnement (protection des captages d’eau potable, des puits, des cours d’eau…).
Cette première mission vise à garantir la réalisation d’installations conformes à la réglementation en vigueur, adaptées au contexte (nature des sols, pentes, autres contraintes particulières…), ne présentant pas de risques pour l’environnement et la salubrité publique.
Elle donne aux collectivités un droit de regard sur l’ensemble des projets de réalisation ou de réhabilitation d’une installation et sur leur exécution, et apporte à l’usager un appui technique. Soulignons toutefois qu’elle ne remplace pas l’étude complète de l’installation que doit réaliser l’architecte ou le maître d’oeuvre des travaux.
Ce contrôle est réalisé, en amont, au vu du projet de création ou de réhabilitation d’une installation.
A cet effet, l’usager remet au SPANC un dossier spécifique (retiré auprès de la mairie) comportant l’ensemble des informations nécessaires à l’exercice de sa mission de contrôle.
Par la suite, ce contrôle sur dossier (et éventuellement sur le terrain) est complété par un contrôle sur le terrain de bonne exécution des travaux avant recouvrement des ouvrages.
Ce contrôle se décompose de la façon suivante :
– un premier contrôle dit « diagnostic » visant à inventorier l’ensemble du parc,
– un contrôle périodique de bon fonctionnement qui est réalisé sur place pour la plupart des installations,
– un contrôle périodique de bon entretien qui peut être réalisé à l’occasion du contrôle de bon fonctionnement ou par simple réception du bon de vidange remis à l’usager par le vidangeur (pour information, la réglementation prévoit une vidange de la fosse par l’usager tous les 4 ans).
Ce contrôle n’a pas pour objectif de faire mettre en conformité, avec la réglementation en vigueur, l’ensemble du parc des installations existantes, mais d’avoir une vision globale de l’état des installations, d’identifier les points noirs représentant un risque important pour la salubrité publique et l’environnement et de faire réaliser les travaux d’amélioration qui s’imposent.
3. Choix d’un mode de gestion pour le SPANC
En théorie, deux modes de gestion pouvaient être envisagées :
– la gestion externe dans le cadre d’une délégation de service public.
– la gestion interne en régie (avec ou sans recours à des prestations de service).
3.1 – Délégation de service public
Pour la Communauté Urbaine de Bordeaux, la délégation de service public s’est avéré juridiquement inadaptée car seule la mission de contrôle des installations a été retenue.
En effet, cette mission n’est pas délégable dans la mesure où elle est qualitativement et quantitativement définie au préalable. A ce titre, un éventuel délégataire percevrait une rémunération stable, contraire au principe d’exploitation aux risques et périls du délégataire.
De surcroît, cette mission s’effectue sur des biens privés : les installations d’assainissement non collectif, et par conséquent, aucun bien ne peut être remis au délégataire en exploitation, ce qui ne lui laisse aucun risque d’exploitation.
Le mode par délégation de service public a donc été écarté.
3.2 — Création d’une régie dotée de la seule autonomie financière
Au terme de la précédente analyse juridique, le choix de la gestion interne en régie s’est donc imposé.
Dans ce cadre, le Code Général des Collectivités Territoriales distingue trois types de régie :
– la régie simple,
– la régie dotée de la seule autonomie financière,
– la régie dotée de la personnalité morale et de l’autonomie financière.
Toutefois, un récent décret (n° 2001-184 du 23 février 2001) relatif aux régies chargées de l’exploitation d’un service public a introduit de nouvelles dispositions quant à la création et au fonctionnement des régies. Il proscrit notamment la gestion de Service Public Industriel et Commercial (SPIC) en régie simple (cf. art. L2221-8 du C.G.C.T.).
Ne voyant par ailleurs aucun intérêt à doter cette future régie d’une personnalité morale distincte de celle de la C.U.B., le choix de la C.U.B. s’est porté sur une régie dotée de la seule autonomie financière.
Cette régie, dotée d’un budget spécifique, annexé au budget principal de la collectivité, sera administrée, sous l’autorité du. Président et du. Conseil de Communauté, par un Conseil d’Exploitation et son Président.
3.3 – Organisation de la régie
Dans le cadre de cette régie, la collectivité devait faire le choix, entre assurer en interne, avec du personnel de la régie, l’ensemble des missions de contrôle et de conseil, ou faire appel, par le biais de marchés publics, à des prestataires de service.
Or, dans la mesure où la Collectivité avait tout intérêt à :
– mettre en place une interface durable avec les services d’urbanisme des 27 communes de la C.U.B. et avec les divers services communautaires, ou autres (ex. D.D.E.), afin d’assurer la mission de contrôle des installations neuves, tout en respectant les délais d’instruction des permis de construire, créer un lien direct avec l’usager afin de répondre au mieux à ses attentes,
– créer un partenariat avec les mairies et les bureaux d’hygiène afin de régler au mieux le problème des installations portant préjudice à la salubrité publique, la Communauté Urbaine a décidé d’assurer en interne l’ensemble des missions du SPANC.
4 – Le SPANC de la Communauté Urbaine de Bordeaux
Par délibération, le Conseil de Communauté va créer courant décembre 2005 son Service Public d’Assainissement Non Collectif.
4.1 – Moyens humains de la future régie
Le personnel de la régie du SPANC sera composé d’une secrétaire comptable et de deux techniciens (1 pour le contrôle du neuf et du réhabilité, 1 pour le contrôle de l’existant), sous le contrôle d’un directeur.
Les charges de personnel constituent la majorité des charges de fonctionnement du service.
4.2 – Financement du service
Le SPANC étant un S.P.I.C., les conséquences pour son financement sont notamment :
– Financement du service par l’usager (conformément à l’article L 22224-2 du Code Général des Collectivités Territoriales), au travers de la mise en place de redevances,
– Produit des redevances affecté exclusivement au- financement des charges du service,
– Redevances devant trouver leur contrepartie dans les prestations fournies par le service,
– Équilibre budgétaire en recettes et en dépenses (article- L 2224-1 du Code Général des Collectivités Territoriales), avec un budget spécifique, à l’assainissement non collectif séparé du budget général et du budget annexe de l’assainissement collectif.
– Tarification devant respecter le principe d’égalité des usagers devant le service.
Afin de respecter ce dernier principe, il est proposé, à l’instar de nombreuses autres collectivités, d’instituer deux types de redevances :
– une redevance ponctuelle portant sur le « contrôle, conception d’implantation et bonne exécution des installations neuves (permis de construire) ou réhabilitées ».
– une redevance annualisée portant sur le «diagnostic et contrôle de bon fonctionnement et d’entretien des installations existantes ».
Pour l’année 2006, et afin de respecter l’équilibre budgétaire du SPANC, le montant de la redevance « contrôle de conception, d’implantation et de bonne exécution des installations neuves ou réhabilitées » est fixé à 150 € HT par contrôle et le montant de la redevance « diagnostic et contrôle de bon fonctionnement et d’entretien des installations existantes » est fixé à 35 € HT par usager (ou foyer) et par an.
Ces deux redevances seront facturées dès 2006 conformément à l’article R 2333-19 du C.G.C.T. :
– pour le contrôle des installations neuves : aux propriétaires (en une seule fois et au terme de la mission de contrôle),
– pour le contrôle des installations existantes : une fois par an, à l’ensemble des usagers du SPANC.
Le montant de ces deux redevances sera fixé chaque année par délibération du Conseil de Communauté.
CONCLUSION
Le SPANC sera créé au 31 décembre 2005 et notre établissement souhaite que ce dernier remplisse, dès 2006, ses missions à la satisfaction de l’ensemble des usagers.

